Nyitólap Hirdetésfeladás Kapcsolat

Nálunk megtalálja új otthonát
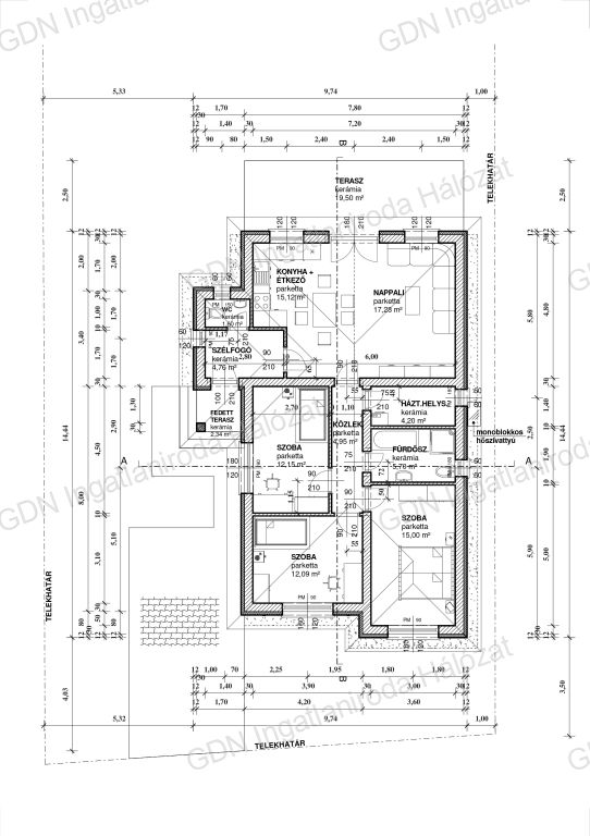
Eladó Családi ház, Sülysáp
#388582
75 millió Ft
Alapterület 93 m2,  600 m2-es telken
Szobák száma 4 szoba
Építési mód nincs megadva
Állapot Új építésű
Emelet nincs megadva

További paraméterek

  • Kilátás: Kertre néző
  • Komfort: Összkomfort

Részletes leírás

Sülysápon a Dózsa Gyögy út és az Ady endre utca sarkán , 600 m2-es telken, újonnan épülő nettó 92,85 m2 hasznos lakótérrel rendelkező, önálló családi ház eladó. A kivitelező cég Sülysápon számos ingatlant épített azonos tervekkel, a hirdetési képek között is az egyik már megépül, értékesített ingatlan szerepel. Komoly érdeklődés esetén szívesen megmutatjuk az ingatlanokat. Csok plusz, Otthon Start elérhető! Az ingatlan 30-as Nútféderes tégla falazóelemből épül, fa födémmel. A tető héjazata antracit betoncserép lesz, a homlokzatok 15cm EPS, a padló 10cm Austrotherm AT-N100-as, a vízszintes födém 25cm Ásványgyapot szigeteléssel lesz ellátva. Hat légkamrás 3 rétegű evegekkel szerelt nyílászárók kerülnek beépítésre. A fűtést monoblockos hőszivattyús rendszer fogja ellátni, padlófűtéssel. A műszaki tartalom választható az alábbi költségkereten belül: -hidegburkolat:3000.- Ft./m2-ig. -melegburkolat:3000.- Ft./m2-ig -csaptelepek:15.000.- Ft./db -kád vagy zuhany: 40.000.- Ft. -beltéri ajtók:35.000.- Ft./db Elektromos kiépítés: -Konnektorok szobákban: 3 db -Konnektorok nappaliban 4db + internet és kábeltv kiállás -Konnektorok konyhában: 6db -Világítás helyiségenként 1-1 db -Kábeltévé: Előkészítés Magasabb árú tatalom is választható a különbség finanszírozásával. Riasztó előkészítés és kapu mozgató elektronika előkészítés is készül. Kérésre szívesen küldünk komplett tervdokumentációt, műszaki leírást. Várható átadás 2026 második negyedév eleje. INGYENES hitel tanácsadás, CSOK Plusz ügyintézés! BANKFÜGGETLEN hitelcentrumunk az összes elérhető bank és hitelintézet ajánlatát versenyezteti az Ön kedvéért, ráadásul DÍJMENTESEN. - Egyedi, bankfiókban nem elérhető kamat- és díjkedvezmények - Hitelképesség vizsgálat - Idő, energia és pénz megtakarítás - Teljes hivatali ügyintézés Amennyiben hirdetésem felkeltette az érdeklődését vagy egyéb információra van szüksége hívjon bizalommal!

Kapcsolat

Horváth Péter

Ossza meg a hirdetést:
FacebookGplusTwitter