Nyitólap Hirdetésfeladás Kapcsolat

Nálunk megtalálja új otthonát
Eladó Családi ház, Táborfalva
#674400244
65 millió Ft
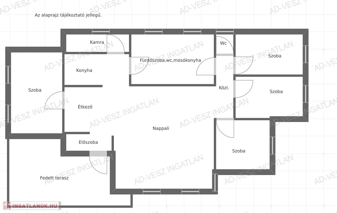
Alapterület 120 m2,  1 041 m2-es telken
Szobák száma 2 szoba + 3 félszoba
Építési mód Tégla
Állapot Újszerű
Emelet nincs megadva

További paraméterek

  • CSOK igényelhető
  • Kertkapcsolatos
  • Kirakatba
  • Otthon Start 3%-os hitellel
  • Zöldövezeti
  • Kilátás: Udvari
  • Fűtés: Cirkó
  • Komfort: Összkomfort
  • Energetika: D
  • Akadálymentesítés: Nem akadálymentesített

Részletes leírás

Nagyon jó állapotú, önálló családi ház

Táborfalván kínálunk eladásra egy nagyon jó állapotú, önálló családi házat.

A 120m2-es ingatlan, 1041m2-es összközműves telken helyezkedik el, csendes környéken.

A ház nagysága, és szobaszáma lehetővé teszi akár nagy család részére is a kényelmes együttélést.

Kialakításra került az ingatlanban 4 hálószoba, amerikai konyhás nappali, kamra, előszoba, wc, fürdőszoba, közlekedő, fedett terasz.

A ház részben alápincézett, beton alapra, tégla falazattal ,cserép fedéssel, fa födémmel épült 2007-ben.

Szigetelt, a központi fűtés gáz cirkóról, és vegyes tüzelésű kazánról egyaránt üzemeltethető, de klíma, és kandalló is rendelkezésre áll.

Az összkomfortos, tehermentes ingatlan hitelezhető.

Ha Ön egy kényelmes, tágas, világos, jó állapotú otthont keres csendes környéken, akkor hívjon, megmutatom ezt a remek házat!

Kizárólag irodánk kínálatában megtalálható.

 

Bocskainé Krisztina

+36-30/221-3336

Kapcsolat

Bocskainé Gudmon Krisztina

Ossza meg a hirdetést:
FacebookGplusTwitter